Centro Educativo de Oftalmología

Equipamiento Médico · Educativo

Centro Educativo
de Oftalmología

Ubicación Av. Paseo Tollocan, Toluca, Estado de México
Año 2025
Institución ITESM · Campus Santa Fe
Equipo Catalina Rius · Pablo Ordoñana · Carlo Argüelles · Andrés Ausín

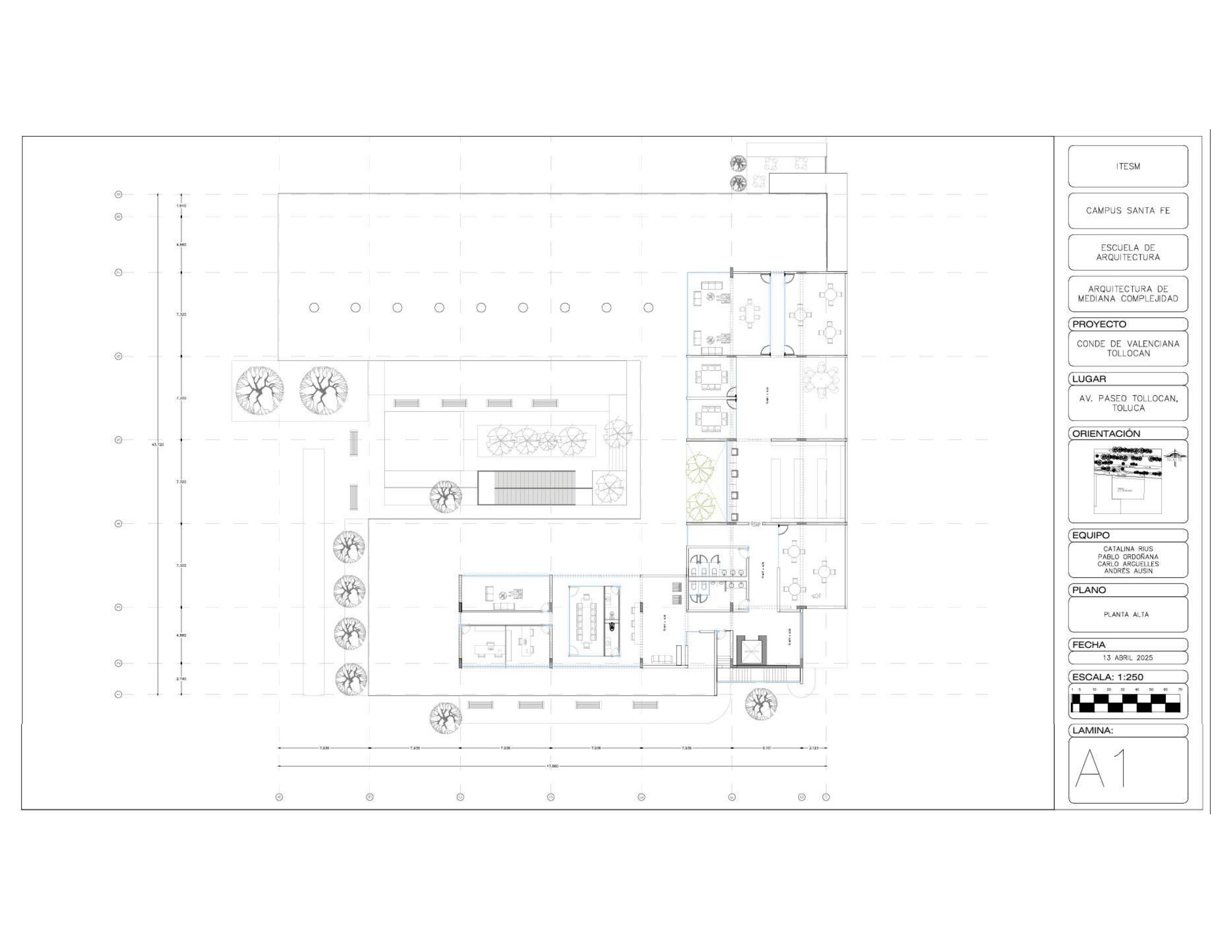
El Centro Educativo de Oftalmología propone un edificio de mediana complejidad que integra consultorios médicos, espacios de enseñanza y un auditorio en torno a una explanada-jardín como elemento articulador del conjunto.

El proyecto parte de la idea de que la experiencia del paciente y la calidad del espacio arquitectónico son inseparables. La luz natural, la vegetación y la continuidad interior-exterior guían cada decisión de diseño.

El programa se organiza en dos volúmenes: uno horizontal de planta baja con consultorios y sala de espera, y un volumen que alberga las aulas y oficinas administrativas. Ambos se conectan a través de un pasillo porticado que enmarca el jardín central.

El auditorio se propone como un edificio independiente con acceso propio desde la avenida, capaz de funcionar de manera autónoma al resto del programa médico-educativo.